大津市南郷エリア 2階約29坪テナント 共用来客駐車場有
物件種別: 店舗(建一部)
物件番号:171026026017
貸店舗
倉庫・工場
オフィス
物販・サービス
理美容
エステ
医療
幹線道路に面する
2階以上の物件
来客用駐車場あり
| 賃料 |
13.2 万円
(税込)
|
|---|---|
| 管理・共益費 |
7,700円
|
| 保証金 / 礼金 |
396,000円 / -
|
| 所在地 |
滋賀県 大津市 南郷
|
| 交通 |
JR琵琶湖線 石山駅
徒歩63分
京阪石山坂本線 石山寺駅
徒歩38分
|
| 築年月 |
1980年08月
|
| 所在階/建物階 |
2階/
地上5階
|
| 駐車場 |
空有
|
| 面積/坪数 |
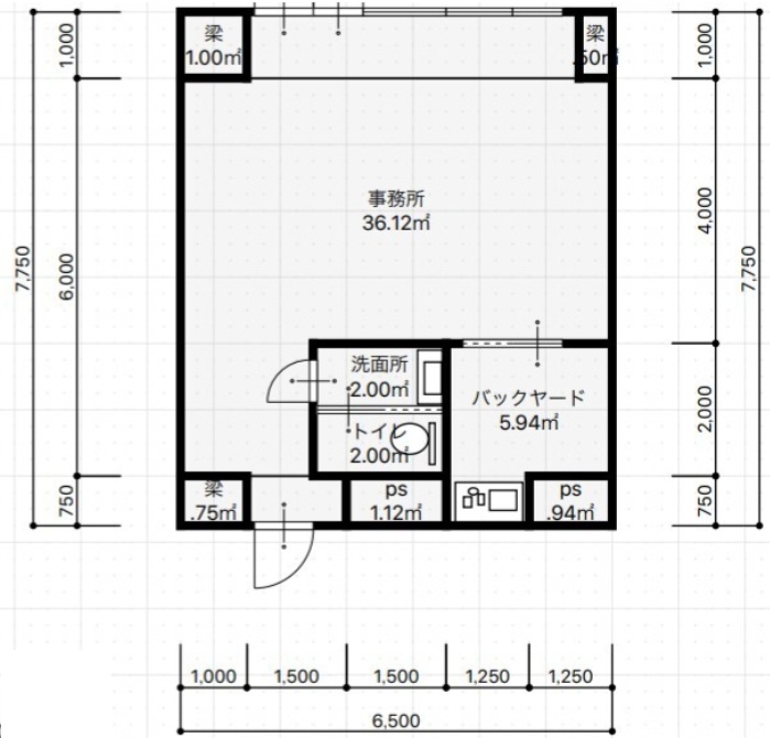
98.03m²
(29.65坪)
|
| 構造 |
RC
|
| 現況/引渡 |
空家/
相談
|
| 取引 | 仲介 |
| 情報更新日 | 2025年10月28日 |
| 次回更新予定日 | 2025年11月05日 |
| 備考 | 滋賀県大津市南郷エリアの2階約29坪のテナント賃貸区画です。事務所やエステ・教室などにおススメです♪ |
この物件を見た人は
こんな物件も見ています
こんな物件も見ています




