お知らせ

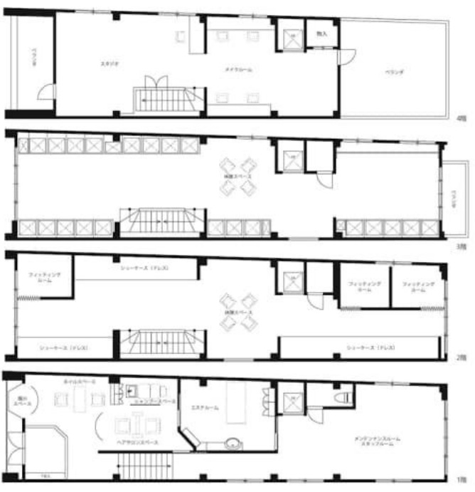
間取

2025.9.16

最近の記事

アーカイブ