お知らせ

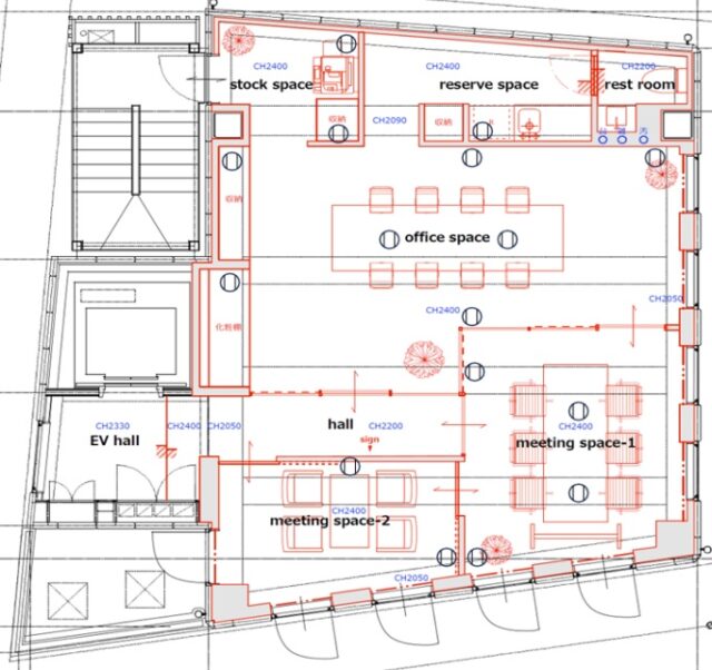
間取

2025.7.8

最近の記事

アーカイブ