お知らせ

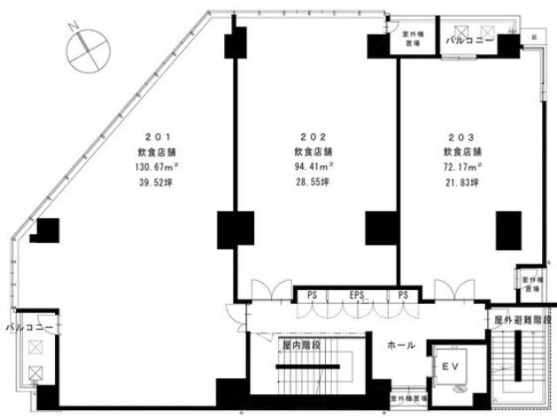
2F間取

2025.4.24

最近の記事

アーカイブ