お知らせ

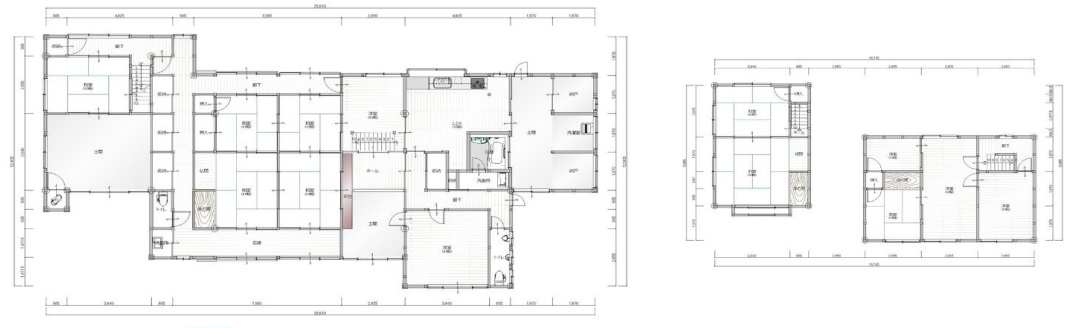
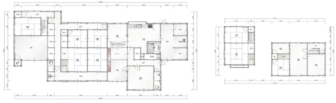
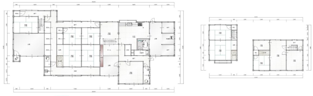
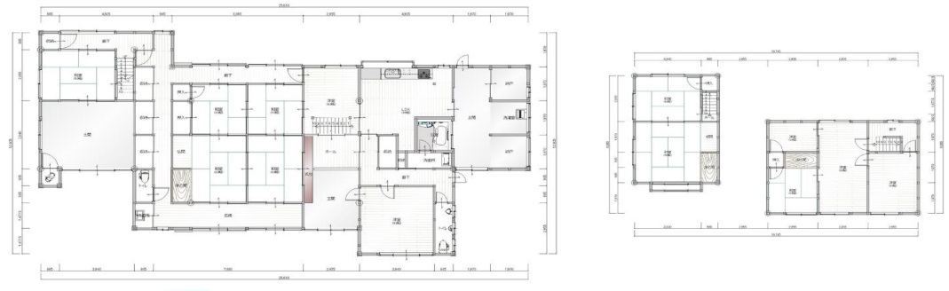
間取

2025.2.3

最近の記事

アーカイブ